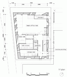
windows.    (via dezeen - Enbutsu-do at Eifuku-ji Temple by Zai Shirakawa Architects & Associates)

windows. (via dezeen - Enbutsu-do at Eifuku-ji Temple by Zai Shirakawa Architects & Associates)

Scroll to Top